Layla Ahmed is everything society expects of a successful young adult. She has a meaningful job at a nonprofit, earns a decent income, and is financially responsible. But despite her achievements, Layla hasn’t ticked off a traditional box of adulthood – living on her own. She moved back home with her parents after finishing college in 2022.
“People assume if you live with your parents in your 20s, you’re lazy or unsuccessful,” Layla confessed to the Today, Explained podcast. Yet, she’s not alone. More and more young Americans are finding themselves in the same situation. This shift signals a change in what it means to “grow up” in today’s world. Los Angeles is no exception to this trend.
California is the most popular state for multigenerational living
More Americans, particularly younger adults, are choosing to live in homes with extended family. This upward trend, present since the early 1970s, has seen a notable increase within the past fifteen years. According to the Pew Research Center, one in every four adults aged 25 to 34 now resides in a multigenerational household. The US Census data confirms this, reporting an 18 percent rise between 2010 and 2020 in households encompassing three or more generations.

According to the Pew Research Center, a quarter of all adults ages 25 to 34 now live in a multigenerational living situation (which it defines as a household with two or more adult generations).
With our strong cultural ties and ever-rising living costs, it’s no surprise that multigenerational living is on the rise again. It’s a trend I welcome and as an architect specializing in residential, I see firsthand how families are rethinking their living arrangements.
Understanding the Driving Forces
Several factors contribute to this resurgence, with financial concerns leading the way. Many young adults find it necessary to move in with family to save money, pay off student loans, and cope with rising inflation and limited homeownership opportunities.
Pew Research highlights financial hurdles as the primary factor. Student debt burdens, sky-high inflation, and a tough housing market are forcing many young adults to rethink independence. Additionally, with increasing diversity within the American population, the trend reflects traditional living patterns more common within Hispanic, Asian, and Black families, particularly immigrant communities.
“I think it’s a contemporary trend, whether it’s to be able to save the money to buy a home, to be able to go back for a master’s degree or to be able to do something to further their ability as independent adults,” said Donna Butts of Generations United.
As an architect, I see this firsthand – families seeking ways to pool resources and create solutions for living together.
Changing Perceptions: Benefits and Sustainability
While some may carry negative perceptions of multigenerational living, there are numerous advantages. Families benefit from shared caregiving, greater financial security, and a sense of community that reduces loneliness. Furthermore, by pooling resources, this lifestyle promotes a more sustainable approach to housing. Moving away from the isolated “nuclear family” model creates a more supportive and resilient structure for families. Multigenerational living is a progressive step, reimagining the traditional home to meet the needs of a changing society.
Not everyone agrees with the benefits, as personalities like Dave Ramsey express concerns. However, even he acknowledges that it can be a temporary strategy for paying off debt when used intentionally.
This is where my role as an architect is crucial. I help families navigate these complexities, designing spaces that balance the need for privacy with the benefits of shared living. Naturally, this sort of cohabitation affects the layouts and typologies of the family home. I pay special attention to creating functional settings suitable for all; spaces where different activities happen without getting in each other’s way. Designs prioritize areas for both privacy and those cherished occasions where generations come together to share stories and strengthen bonds.
The Architect’s Role: Solutions and Design Expertise
My work focuses on helping families find solutions that maximize comfort and functionality in multigenerational settings. This includes:
- Clustered Volumes: Separate living units or additions can provide privacy while still maintaining connection.
- Stacking Solutions: In urban areas, creating multi-level dwelling zones can maximize space, particularly in dense neighborhoods.
- Adaptable Design: Flexible spaces that transform as needs change are crucial for long-term success.
- Aging in Place: Universal design proactively supports senior loved ones, simplifying necessary changes through time.
- Harmonious Aesthetics: Every family has its preferences. My job is to blend styles and create a cohesive space that reflects the whole family’s identity.
Here are just a few examples of how this translates into real-world designs:
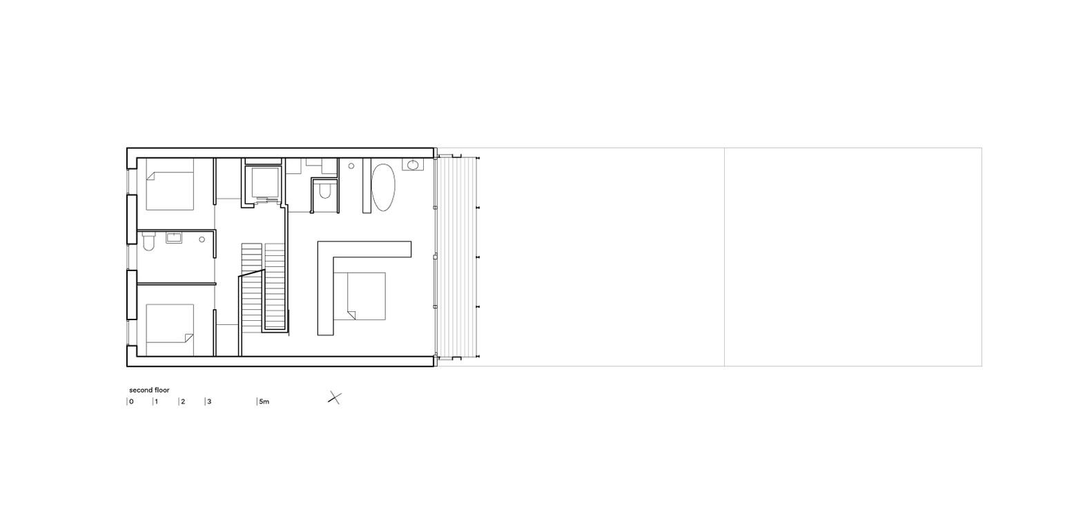
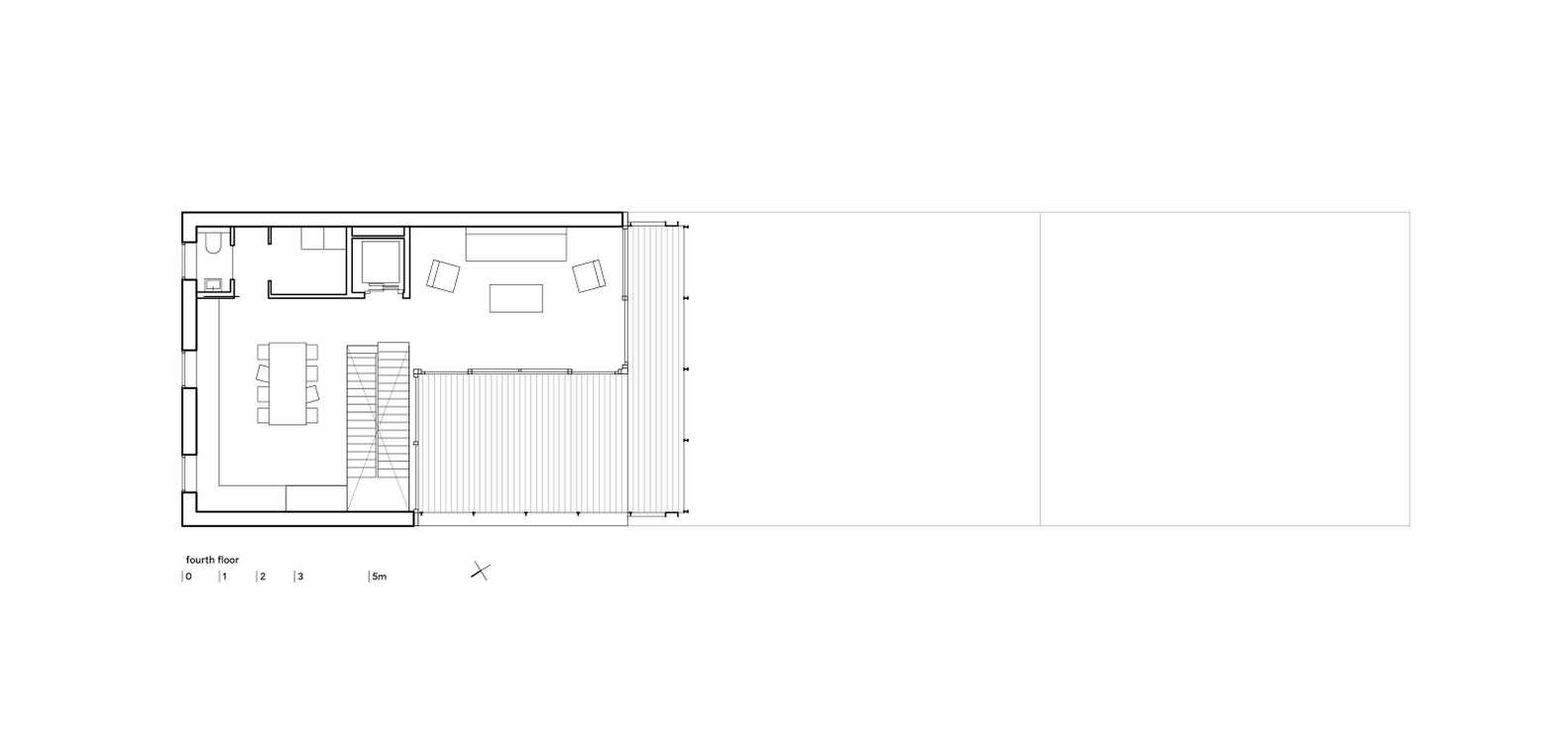
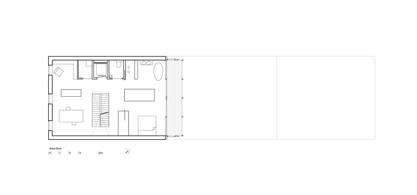
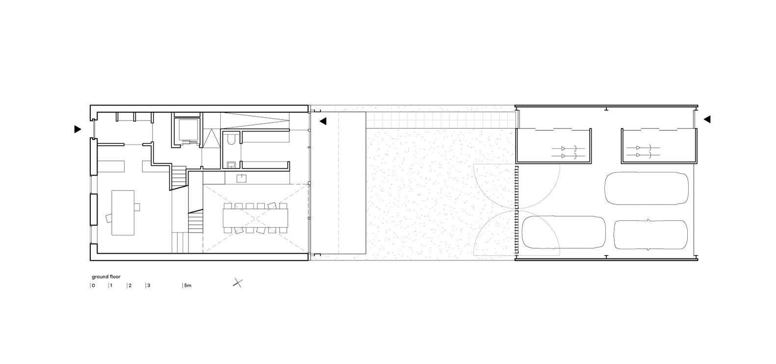
Vertical Multi-family Home
A popular design for multigenerational families is the vertical or “stacked” layout. Picture this as a multi-story house where each floor functions as a separate living unit. This allows different generations to have privacy, with their own kitchens, bathrooms, and living spaces, while still being close. This style is also adaptable: families can add floors later on if needed. It’s an efficient choice because the home takes up less land, making it well-suited for city living.

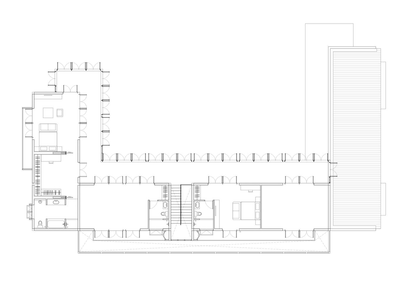
Three Generation House / BETA office for architecture and the city

Hon Xen House / A+ Architects
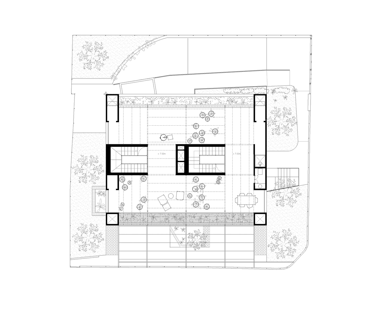
Separate Wings Family Home
This layout offers a high degree of privacy. Imagine a home divided into distinct wings or sections, providing each generation with their own living spaces. These wings often surround a shared area – think a welcoming courtyard, a relaxing patio, or a garden where everyone can come together. This design does require more space but the benefits in privacy and shared connection might be worth it!

House BT / Research Studio Panin

Villa Teruca, 2 Houses/ EME157 estudio de arquitectura
Hybrid Stacked Family Home
Inspired by some East Asian homes, this design blends the best of separate wings and stacked layouts. Think of a multi-story house with individual private rooms for sleeping or working. These areas prioritize quiet, while open, airy spaces in between become shared kitchens, living areas, or even indoor gardens. The design makes clever use of vertical gaps to let in lots of natural light and improve air circulation throughout the home. This approach often results in some of the most creative and visually interesting multigenerational living spaces.

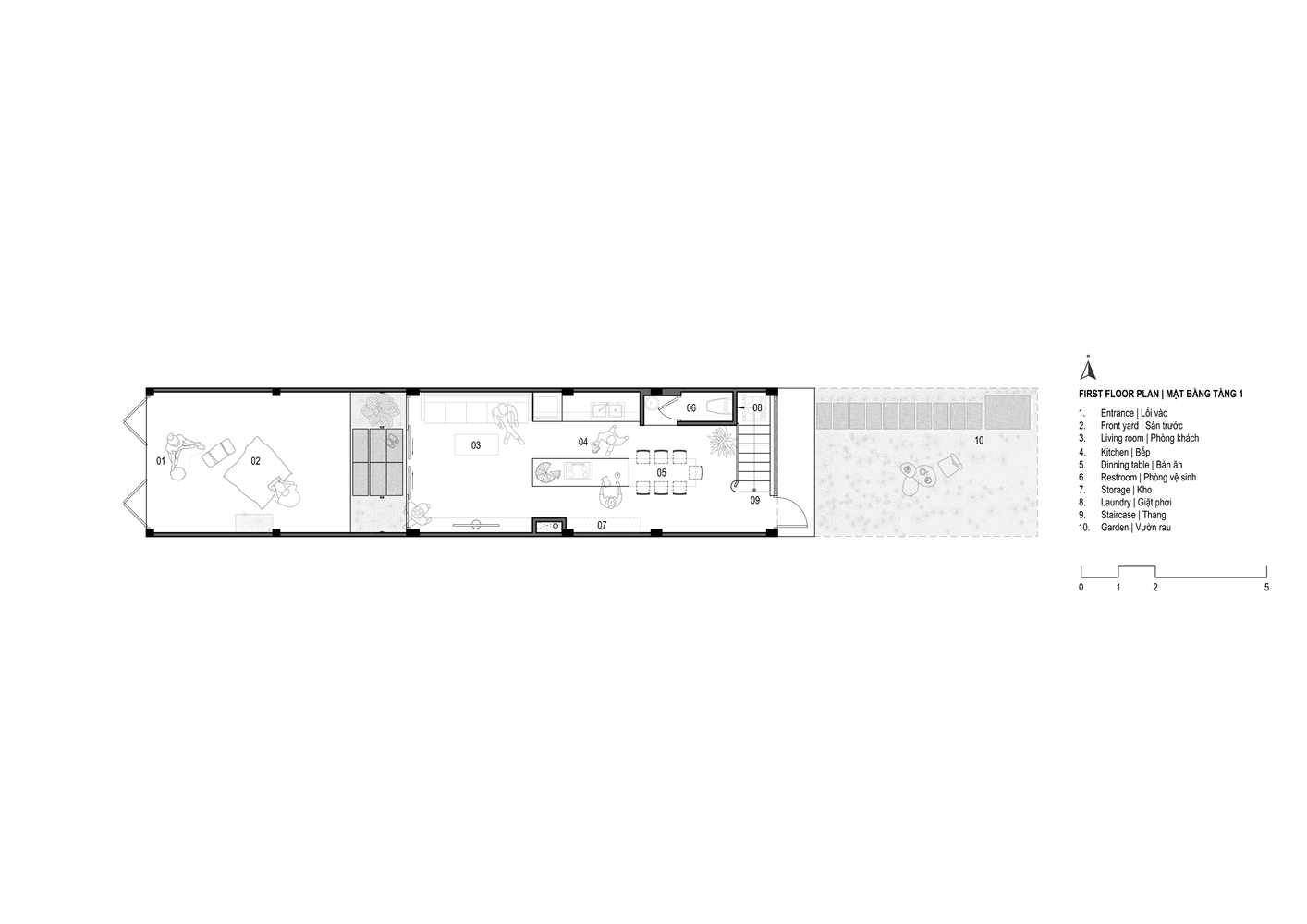
Extended Family Home
Sometimes, adding extra floors isn’t the best solution for an existing family home. Instead, creative extensions can transform the space in unexpected ways. These could involve adding a smaller, offset building for separate living quarters, perfect for grandparents or adult children. Alternatively, adding a spacious, shared living area attached to the existing house allows you to reconfigure the original space for more private bedrooms. The right extension can make an older home feel brand new and cater to the changing needs of a multigenerational family.

Benoit&Roselyne / DIXNEUFCENTQUATREVINGTSIX
Flexible-Use Family Home
This design disguises itself as a traditional single-family home but offers exciting possibilities. Instead of rooms having rigidly defined uses, spaces remain intentionally simple and minimally furnished. This gives every member of the family the power to transform the space as needed. Need a home office one day? A playroom the next? A guest room on the weekend? This flexible design allows the home to evolve along with the family’s changing needs.

Vikki’s Place / Curious Practice
Is It Right for You?
At Yifu Design Studio, we start every multigenerational project with a thorough consultation at no cost. We assess your home’s potential, explore your family’s unique needs, and outline possibilities inspired by best practices and broader trends. It’s about empowering you to make the best possible decision for your loved ones.
If you’re intrigued by the potential of multigenerational living, contact Yifu Design Studio for a free consultation. Let’s explore how design can make your dream of a multigenerational home a beautiful and functional reality.















































