Free Residence

Valley Village, CA

This two-story design combines an existing primary structure with a proposed Accessory Dwelling Unit (ADU) to create flexible living options within a single property.

Type:                                                   Multi family Residential

Lot Area:                                           1,200 sq ft

Lot Dimensions:                          64’ x 125’

Levels:                                                2 stories

Program:                                           Existing Primary                                                                                          Structure, Propose ADU

Rooftop Terrace

Living Room

Bed Room

Free Inside Ground Level

Space:                                 2 x Garage, Living Area,                                                          Bedroom

Area:                                     600 sq ft

Dimensions:                      64’ x 125’

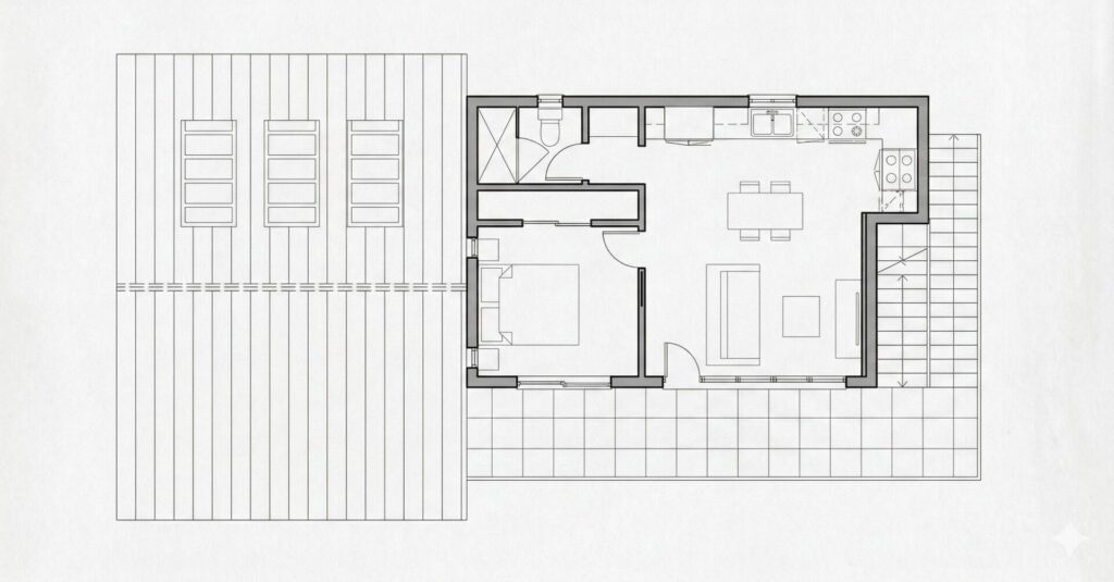
Free Inside Second Level

Space:                                           Living Area, Dining Area
                                                           Kitchen, Bedroom, Study Area
                                                           Walk-In closet, Bedroom.

Area:                                             600 sq ft

Dimentions:                            64’ x 125’

Scroll to Top
Call Us