Rigo's Fiesta
Type: Commercial
Commercial SF: 7,052 sq ft
Commercial Footprint: 84’ x 84’
Levels: 2 stories
Program: Ground Floor – Commercial
Second Floor – Residential




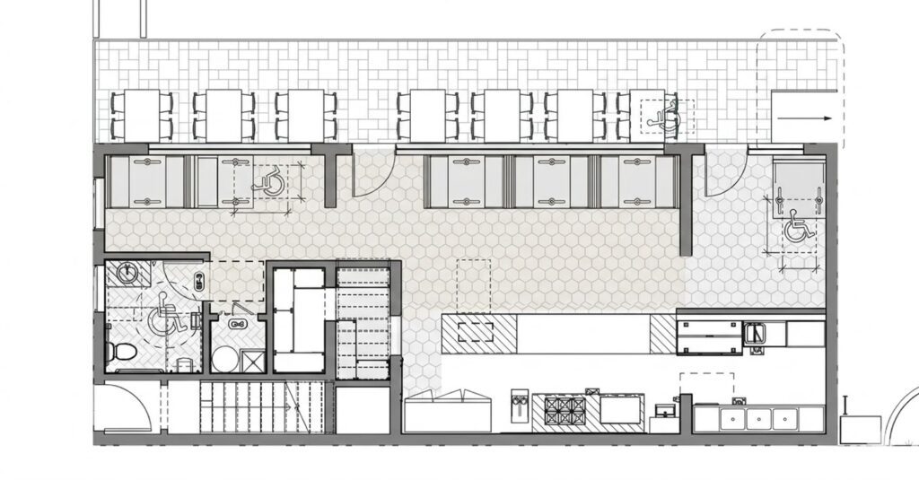
Rigo's Level 1
Space:
Dimensions:
Area:

