Mariposa Residence
Altadena, CA
Type: Residential
Home Footprint: 22’-8” x 41’-5”
Home SF: 1911 SF
Levels: 3 Story





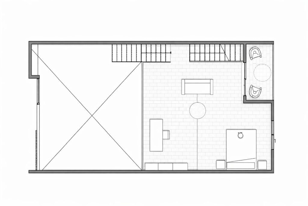
Ground Level
Space: 1 Bedroom attached ADU and an attached garage
Dimensions: 41’ – 5” x 22’ – 8”’
Area: 936.46 Sf


Second Level
Space: 1 Bedroom attached ADU and an attached garage
Dimensions: 41’ – 5” x 22’ – 8”’
Area: 936.46 Sf
Mezzanine Level
Space: 1 Bedroom Single Family Residence
Dimensions: 22’ – 8” x 24’ – 0”
Area: 544.28 Sf


Roof Garden Level
Space: Open Roof garden
Dimensions: 22’ – 8” x 23’ – 10’
Area: 544.10 Sf
