
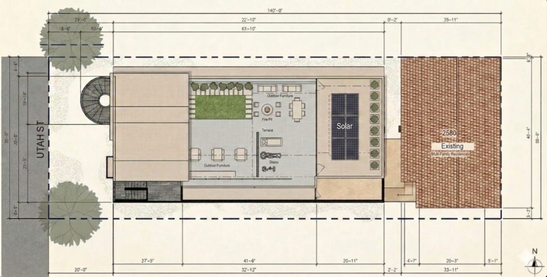
Cuckoo Residence
Cuckoo Residence as a contemporary reimagining of multifamily living, shaped by light, air, and a careful balance of privacy and community. Through courtyards and terraces rather than shared walls, the architecture fosters outdoor living, connection to nature, and a more humane approach to density.
Type: Multi family Residential
Home SF: sq ft
Home Footprint:
Levels: stories
Program:

Rooftop Terrace

Rooftop garden at Cuckoo



Stairs at Cuckoo
Balcony at Cuckoo
Elevated view
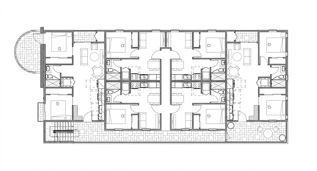
Cuckoo Level 1
Space: Garage, Living Area, Dining Area
Kitchen, Bedroom, Study Area
Walk-In closet, Bedroom.
Home SF: 600 sq ft


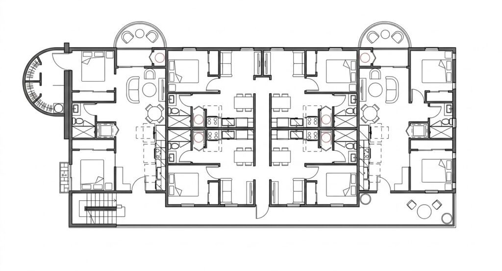
Cuckoo Level 2
Space: Living Area, Dining Area
Kitchen, Bedroom, Study Area
Walk-In closet, Bedroom.
Home SF: sq ft
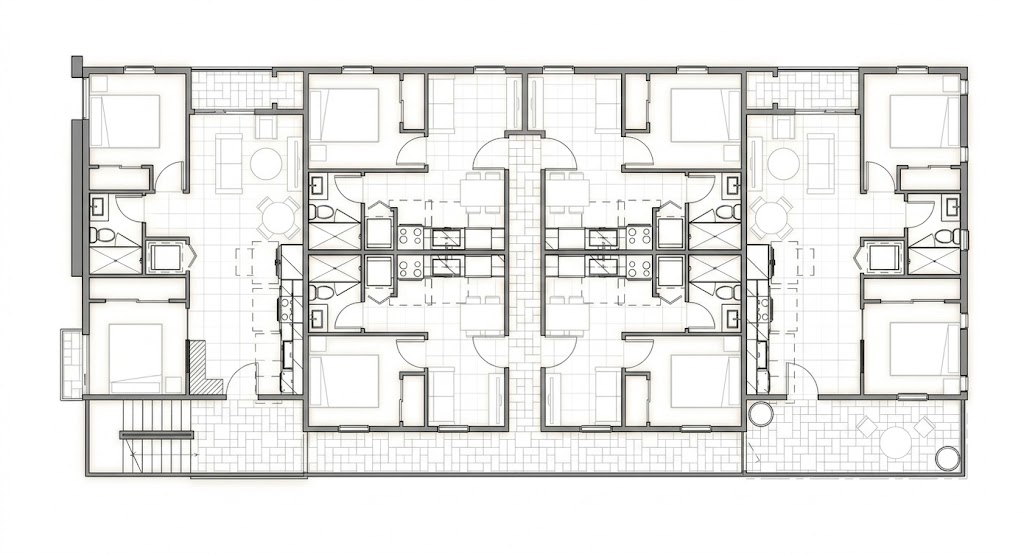
Cuckoo Level 3
Space: Living Area, Dining Area
Kitchen, Bedroom, Study Area
Walk-In closet, Bedroom.
Home SF: 600 sq ft


Roof Deck
Space: Living Area, Dining Area
Kitchen, open area, Study Area
Walk-In closet, Bedroom.
Home SF: 600 sq ft